●HOME > 家(おうち)
家(おうち)

さなり近衛殿は、京都御所に近い、歴史と生活の共存する、京都・西陣の住宅地の一角にあります。
自然の材と伝統の技を生かした2棟の町家が路地に並び、その間には茶室を設けています。

外観写真
[竹」は平屋、「楓」は2階建となっております。
平屋「竹」

大きな梁や西陣織の襖が存在感を放つ西棟の「竹」。
ダイニングキッチン、洗面所、トイレ、浴室と6畳の和室が平屋造りの1つの空間に。
バリアフリー対応なので車椅子の方もお泊りになれます。


楓ダイニング
楓ダイニング

< 下記の写真をクリックすると拡大にてご覧いただけます。 >

縁側

●縁側
紅葉と枯山水を眺められる落ち着いた縁側でおくつろぎになれます。

キッチン

●キッチン
キッチンは趣ある木製のオリジナル。チークのフロアは床暖房付きで冬も温かです。

鍋釜食器

●鍋釜食器
調理や食事に必要な道具、食器を一通り揃えています。

和室

●和室
障子、襖、畳など日本家屋の美しさを天井の竹の証明が照らします。

襖表

●襖表
京都の伝統工芸である西陣織を織物襖紙として用い、竹藪と光を鮮やかに表現しています。

襖裏

●襖裏
表と同じく西陣織を織物襖紙として用い、霞がかった幻想的な月夜を表現しています。

棟木と梁

●棟木と梁
松の木でできた棟木と梁は大きな存在感を放ち、部屋全体に重厚感や奥ゆかしさを与えています。

浴室

●浴室
小さな庭を見ながら槇のお風呂で心地よい時間を楽しめます。入浴補助が必要な方の為に広めの造りとなっています。

トイレ

●トイレ
トイレは機能的な最新型を設置。左右に手すりが設置してあり、車椅子の方でもご利用いただけます。

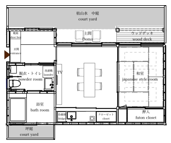
竹間取り図
東棟 「椿」

檜、松、栗など木の温もりが伝わる家は、
1階にダイニングキッチン、浴室、洗面所、2階に京間6畳の和室、トイレを配置。
住みよさと美しさを考えた、小さな空間です。


ダイニング
ダイニング

< 下記の写真をクリックすると拡大にてご覧いただけます。 >

縁側

●縁側
石の水鉢や紅葉を眺めながら時間を忘れ心地よく過ごすことができる縁側があります。

ダイニング

●キッチン
キッチンは趣ある木製のオリジナル。チークのフロアは床暖房付きで冬も温かです。

鍋釜食器

●鍋釜食器
調理や食事に必要な道具、食器を一通り揃えています。調味料の貸し出しもあります。

浴室

●浴室
自然の香りが漂う槇のお風呂。小さな庭を見ながら心地よいバスタイムを楽しめます。

階段

●階段
勾配がゆるやかで一段が広く、歩くように楽に上れます。

和室

●和室
2階の和室は迫力ある船底天井、宇陀の和紙を使った障子、畳など日本家屋の美しさを凝縮。

洗面所

●洗面所
洗面所は機能的に。洗濯乾燥機と暖房のオイルウォーマーを備え付けました。

壁紙

●壁紙
ダイニングには京都の伝統工芸である西陣織で織ったオリジナルのクロスが張ってあります。

トイレ

●トイレ
民家らしい落ち着きの中、トイレは清潔で機能的な最新型を設置。

楓間取り図